南非采购需求:inoxpa机械密封件、inoxpa泵密封件、机械泵密封件、原厂机械密封件、泵机械密封件、泵密封件
原文:inoxpa mechanical seals,inoxpa pump seal,mechanical pump seal,oem mechanical seal,pump mechanical seals,pump seal
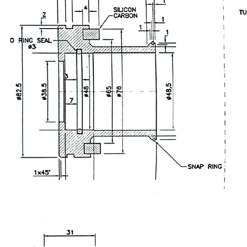
参考产品图片:
-
Facebook
-
南非
- 2026-04-02
-
ashiercom****@****l.com
-
211****48172
(
WhatsApp )
采购商询盘内容
I'm interested in exploring some of your products and would like to get more details about your offerings. Could you please provide the specifications, pricing, and any current promotions?
Also, it would be great if you could share some sample images or catalogs. I'm looking forward to your reply so we can discuss potential orders and partnership opportunities!
我对贵公司的一些产品很感兴趣,想了解更多详情。请问能否提供产品规格、价格以及目前的促销活动?
另外,如果您能分享一些样品图片或产品目录就太好了。期待您的回复,以便我们探讨潜在的订单和合作机会!
注册免费获取联系方式(剩余查看次数1)
